Beschrijving
ENERGIELABEL A | GASLOOS | 146 M² WOONOPPERVLAKTE | VOLLEDIG VERBOUWD & INSTAPKLAAR
Deze woning wordt aangeboden met een bieden vanaf prijs.
Bent u op zoek naar een ruime, duurzame en volledig gemoderniseerde eengezinswoning op een centrale locatie? Dan is deze prachtige, turnkey woning precies wat u zoekt. Gelegen in een levendige en kindvriendelijke buurt, met scholen, supermarkten en voorzieningen binnen handbereik. Ook het centrum van Almere Buiten, openbaar vervoer en het treinstation bevinden zich op loopafstand.
Deze gasloze woning met energielabel A en een woonoppervlakte van maar liefst 146 m² is volledig verbouwd en klaar voor de toekomst. Dankzij onder andere 8 zonnepanelen (2016) woont u hier niet alleen comfortabel, maar ook energiezuinig.
Begane grond
Via de entree betreedt u de woning en komt u in de hal met meterkast (compleet vernieuwd) en toegang tot de ruime, lichte woonkamer. De begane grond is voorzien van comfortabele vloerverwarming en een hoogwaardige laminaatvloer die doorloopt in een strakke, moderne afwerking.
De royale woonkamer biedt volop ruimte voor een gezellige zithoek en een grote eettafel. Dankzij de schuifpui heeft u direct toegang tot de zonnige achtertuin op het noordwesten. Hier vindt u een terrasoverkapping met roldeur, waardoor u optimaal kunt genieten van lange zomeravonden – in de zon of juist in de schaduw.
Aan de voorzijde van de woning bevindt zich de luxe open keuken met kookeiland. De keuken is voorzien van hoogwaardige inbouwapparatuur van Bauknecht, waaronder een combimagnetron, vaatwasser, koelkast en een 5-pits kookplaat. De ingebouwde afzuigkap van Novi is stijlvol verwerkt in het kookeiland. Daarnaast beschikt de keuken over een ingebouwde koffiemachine en een Quooker – ideaal voor de kookliefhebber.
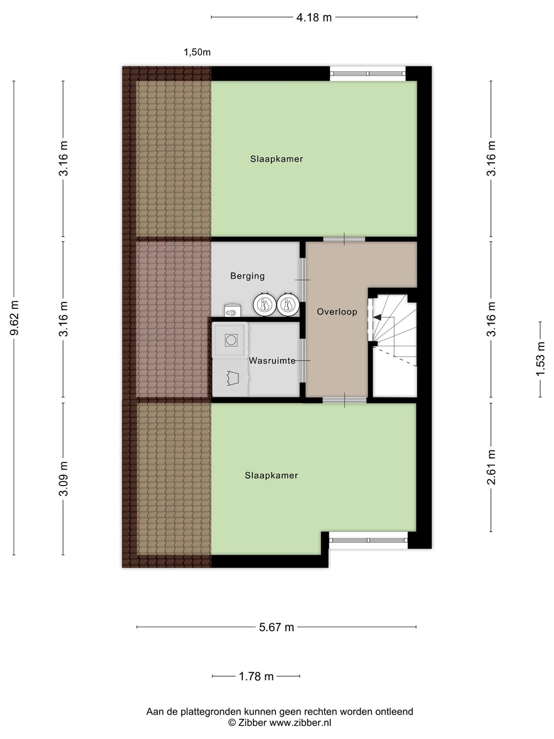
Eerste verdieping
Op de eerste verdieping bevinden zich drie ruime slaapkamers. Alle kamers zijn afgewerkt met moderne laminaatvloeren en lichte wanden, wat zorgt voor een rustige en frisse uitstraling. Achter de ouderslaapkamer bevindt zich een inloopkast wat zorgt voor extra bergruimte en comfort.
De luxe badkamer is een ware oase van ontspanning en beschikt over een inloopdouche en elektrische vloerverwarming. Daarnaast is er op deze verdieping een apart toilet aanwezig – praktisch en comfortabel voor het hele gezin.
Zolderverdieping
De zolderverdieping biedt nog eens twee volwaardige slaapkamers. Deze ruimtes zijn multifunctioneel in te richten: ideaal als tienerkamer, thuiskantoor, logeerkamer of hobbyruimte.
DUURZAAMHEID EN COMFORT
Deze woning is volledig gasloos en voorzien van:
8 zonnepanelen (2016)
Energielabel A
Vloerverwarming op de begane grond
Gaskachel
Elektrische vloerverwarming in de badkamer
Laminaatvloer door de gehele woning
2 elektrische boilers van 150 liter in technische ruimte
Elektrische ketel merk Bosch 2024
Hier woont u toekomstbestendig met lage energielasten.
Buitenruimte
De achtertuin op het noordwesten is een heerlijke plek om te ontspannen. Dankzij de gunstige ligging vindt u altijd een fijne plek in de zon of schaduw. De terrasoverkapping met roldeur maakt het plaatje compleet.
Kortom: een ruim bemeten, stijlvol afgewerkte en duurzame gezinswoning op een uitstekende locatie. Instapklaar, modern en met maar liefst vijf slaapkamers – ideaal voor groeiende gezinnen of wie simpelweg meer ruimte wenst.
Onder voorbehoud van gunning.
Oplevering in overleg.